« Torna alla ricerca

Rif. 5/0002

CAPANNONE / MAGAZZINO in affitto

EMPOLI zona Cortenuova

Richiesta Informazioni
Per le finalità del presente modulo si dichiara di essere maggiorenne ed aver preso visione dell'informativa completa sul trattamento dei dati personali (cliccare qui) in riferimento al D.L. Ita n. 196 del 30/06/2003 e Regolamento europeo GDPR 2016/679 accettandola integralmente.
Contattaci subito

Telefono

055.8713895 - 328.8937436

Email

info@immobiliarechiantigiana.it

Descrizione immobile

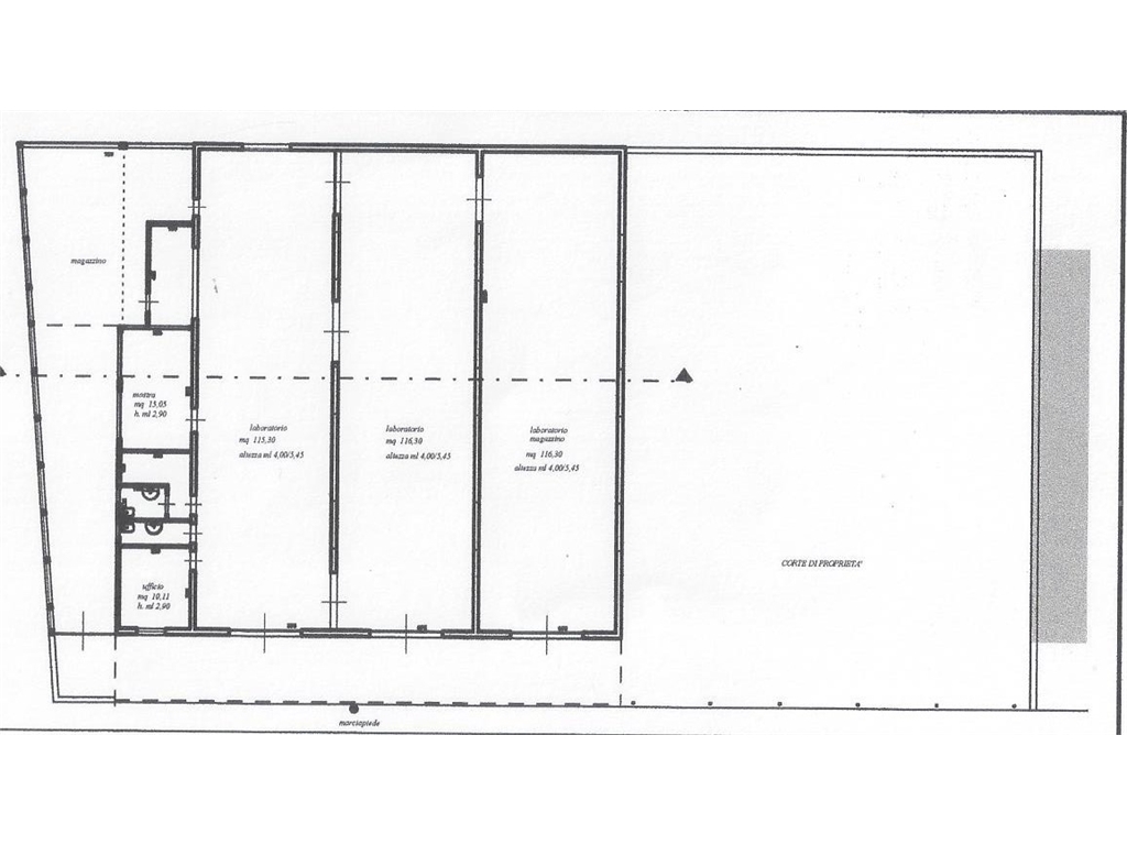
Vicinanze ingresso FI-PI-LI Empoli Est, affittasi capannone libero su quattro lati di mq. 500 circa, altezza 5m., con tre grandi accessi carrabili oltre uffici, servizi e piazzale esterno di mq. 500. - CLASSE ENERGETICA IN ELABORAZIONE

Richiesta: 1.500 €

Caratteristiche pricipali

  • Superficie Mq: 500
  • Vani: 6
  • Giardino:
  • Box / Garage:
  • Ingresso: 3, grandi
  • Soggiorno: 0
  • Cucina: 0
  • Camere: 0
  • Servizi: 0
  • Ripostigli: 0
  • Balconi: 0
  • Terrazzi: 0
  • Cantina: 0
  • Piano: terreno | Piani tot Stabile: 1
  • Ascensore:
  • Riscaldamento: assente
  • Anno di costruzione:
  • Classe Energetica (IPE): G ()

Ubicazione indicativa immobile

« Torna alla ricerca