« Torna alla ricerca

Rif. 5/0109

CAPANNONE / MAGAZZINO in affitto

LASTRA A SIGNA zona Ginestra Fiorentina

Richiesta Informazioni
Per le finalità del presente modulo si dichiara di essere maggiorenne ed aver preso visione dell'informativa completa sul trattamento dei dati personali (cliccare qui) in riferimento al D.L. Ita n. 196 del 30/06/2003 e Regolamento europeo GDPR 2016/679 accettandola integralmente.
Contattaci subito

Telefono

055.8713895 - 328.8937436

Email

info@immobiliarechiantigiana.it

Descrizione immobile

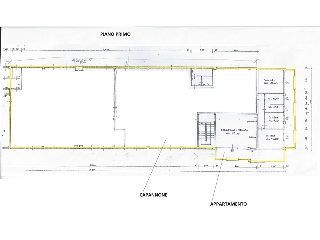
PRESSI, OTTIMA POSIZIONE A SOLI 4 KM. DALL'INGRESSO DELLA FI-PI-LI DI GINESTRA F.NA, AFFITTASI PORZIONE DI CAPANNONE PIANO PRIMO DI MQ. 280 CIRCA, ALTEZZA 3,5 M. CIRCA, COMPOSTO DA: UFFICIO, GRANDE UNICO VANO, DUE BAGNI, DUE SPOGLIATOI, OLTRE A APPARTAMENTO ATTIGUO DI MQ. 121 CIRCA CON AMPIO SOGGIORNO, CUCINA, DISIMPEGNO, TRE CAMERE, DUE BAGNI, DUE TERRAZZI, OLTRE PARCHEGGIO. ACCESSO TRAMITE VANO SCALA INDIPENDENTE CHE COLLEGA SIA IL CAPANNONE CHE L'APPARTAMENTO. - CLASSE ENERGETICA IN ELABORAZIONE

Richiesta: contattateci

Caratteristiche pricipali

  • Superficie Mq: 400
  • Vani: 9
  • Giardino:
  • Box / Garage:
  • Ingresso: 1, da vano scala indipendente
  • Soggiorno: 0
  • Cucina: 0
  • Camere: 0
  • Servizi: 0
  • Ripostigli: 0
  • Balconi: 0
  • Terrazzi: 0
  • Cantina: 0
  • Piano: 1 | Piani tot Stabile: 2
  • Ascensore:
  • Riscaldamento: autonomo
  • Anno di costruzione:
  • Classe Energetica (IPE): G ()

Ubicazione indicativa immobile

« Torna alla ricerca