« Torna alla ricerca

Rif. 5/0125

CAPANNONE / MAGAZZINO in affitto

CAPRAIA E LIMITE zona Limite Sull'arno

Richiesta Informazioni
Per le finalità del presente modulo si dichiara di essere maggiorenne ed aver preso visione dell'informativa completa sul trattamento dei dati personali (cliccare qui) in riferimento al D.L. Ita n. 196 del 30/06/2003 e Regolamento europeo GDPR 2016/679 accettandola integralmente.
Contattaci subito

Telefono

055.8713895 - 328.8937436

Email

info@immobiliarechiantigiana.it

Descrizione immobile

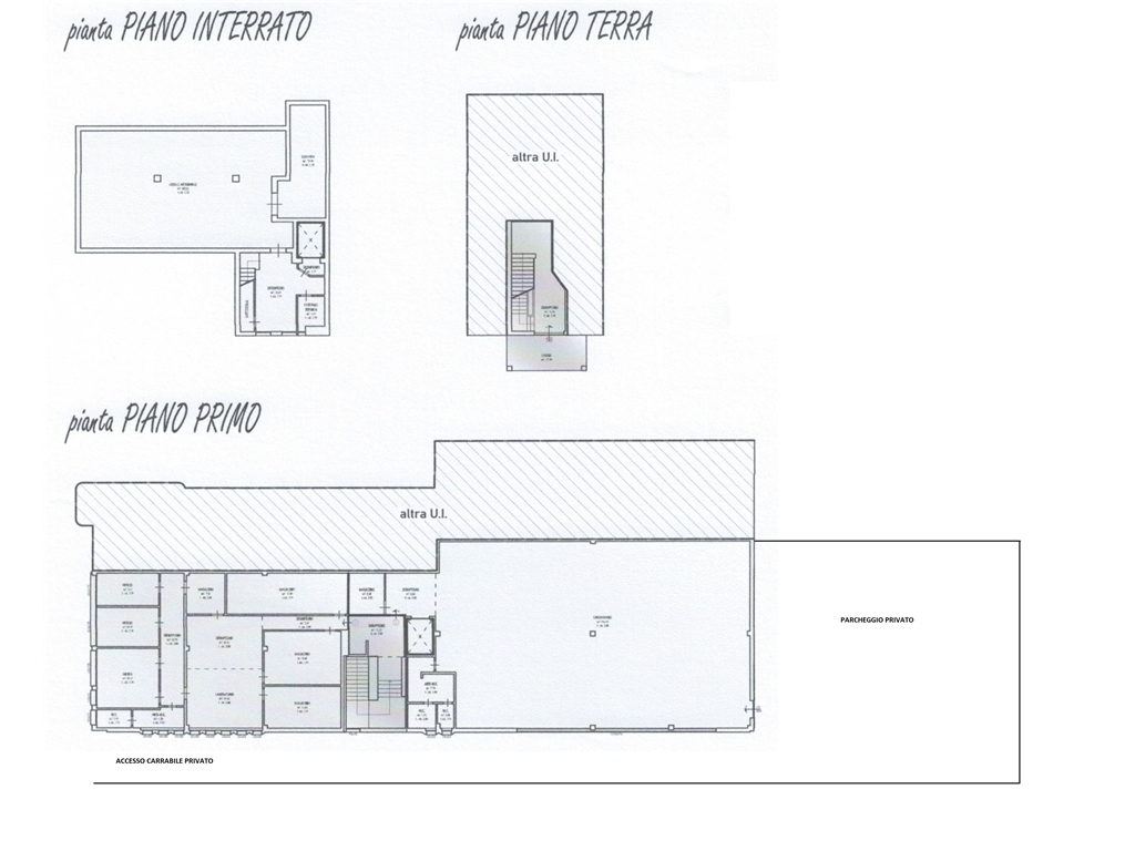
Nei pressi di sovigliana/empoli affittasi porzione di capannone mq. 750 circa. L'immobile è così composto: ingresso carrabile indipendente con parcheggio/piazzale tergale in quota con il laboratorio al piano primo, al piano terra ingresso coperto da loggia sul vano scala, al piano primo laboratorio di mq. 600 circa suddiviso sul lato destro ampio locale con accesso al parcheggio, due servizzi, ufficio, sul lato sinistro rispetto al vano scala ampio locale attualmente suddiviso in vari vani (divisioni modificabili essenedo in cartongesso), due uffici, cucina/mensa, bagno, al piano seminterrato collegato tramite vano scala e montacarichi locale magazzino caveau con porta blindita di mq. 150 circa. - CLASSE ENERGETICA IN ELABORAZIONE

Richiesta: 1.900 €

Caratteristiche pricipali

  • Superficie Mq: 750
  • Vani: 15
  • Giardino:
  • Box / Garage:
  • Ingresso: 2, indipendenti
  • Soggiorno: 0
  • Cucina: 0
  • Camere: 0
  • Servizi: 3
  • Ripostigli: 0
  • Balconi: 0
  • Terrazzi: 0
  • Cantina: 0
  • Piano: 1 | Piani tot Stabile: 3
  • Ascensore:
  • Riscaldamento: assente
  • Anno di costruzione:
  • Classe Energetica (IPE): G ()

Ubicazione indicativa immobile

« Torna alla ricerca